免费定制产品计划 预约实地考察
- 相识需求确定计划
- 签署条约准期生产
- 配送装置指导操作
- 免费培训恒久售后
135-2505-6999
产品种别:冶金起重机
应用规模:
销售效劳机构
480余家种种加工装备
1600余台各级声誉称呼
120余项天下咨询效劳电话
135-2505-6999

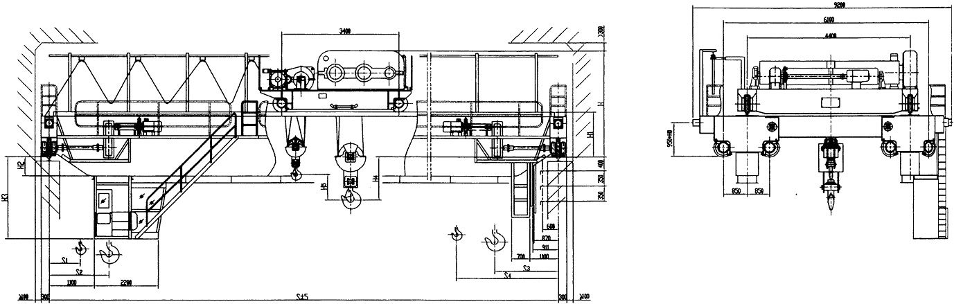
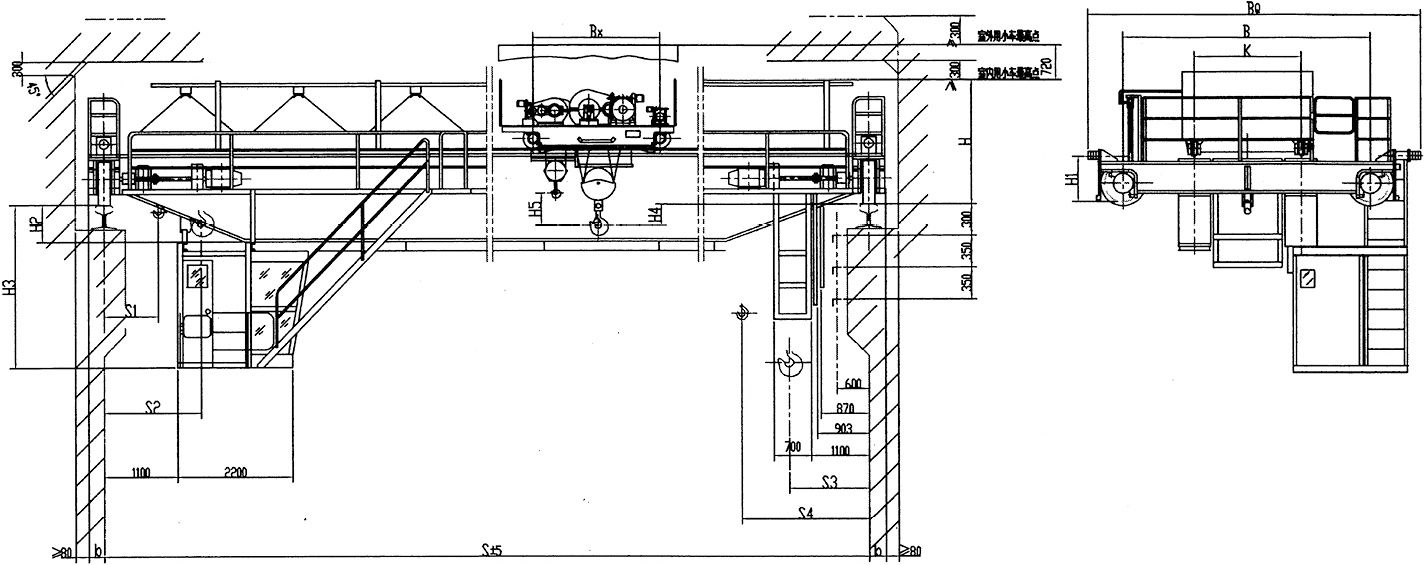
QDY吊钩桥式铸造起重机主要用于吊运熔融金属的冶金、铸造等场合,,,,,,,,整机事情级别为A7,,,,,,,,在主梁底部加设隔热层装置。。。。。起重机装配与试验切合国家质量监视磨练检疫总局所发的质检办特[2007]375号文件。。。。。其它吊运熔融的非金属物料和吊运酷热固态金属的场合也可参照选用。。。。。(注:以下图中H0为大车缓冲器增添的高度。。。。。H0≤250)
情形条件:
1、起重机的电源为三相交流,,,,,,,,额定频率为50HZ,,,,,,,,额定电压为380V;;;;;;;;
2、事情情形温度为-10~+60℃;;;;;;;;
3、在+40℃的温度下相对湿度不凌驾50%;;;;;;;;
4、如凌驾上述要求,,,,,,,,凭证用户需要按订货条约条款执行。。。。。
订货须知:
用户在定货或签署条约时,,,,,,,,必需将本机的基本参数(额定起重量、起升高度、跨度等)形貌清晰,,,,,,,,以便提供知足工况要求和事情条件的产品。。。。。




实力包管 年产销97000余台
现有员工3100人,,,,,,,,占地68万余平方米,,,,,,,,拥有资产12.8亿元,,,,,,,,480余家销售效劳机构辐射海内外,,,,,,,,种种加工装备1600余台(套)品牌包管 重机协会副理事长单位
已获部级、省级120余项声誉称呼,,,,,,,,产品脱销天下30多个省市自治区与军工、核电、航天等国企集团建设了优异的营业关系质量包管 百道质检工序专人专职
完善的质量系统、严酷的治理制度,,,,,,,,已通过GB/T19001/ISO9001质量治理系统,,,,,,,,GB/T24001/ISO14001情形治理系统等效劳包管 售后24小时快速响应
凭证条约要求为售出的装备举行装置、调试和培训买方手艺职员,,,,,,,,7*24小时专职客服快速响应效劳,,,,,,,,快速解决使用难题免费定制产品计划 预约实地考察
天下统一效劳热线:
135-2505-6999
扫一扫
关注我们
天下免费效劳热线
135-2505-6999