Ãâ·Ñ¶¨ÖƲúÆ·¼Æ»®¡¡Ô¤Ô¼ÊµµØ¿¼²ì
- ÏàʶÐèÇóÈ·¶¨¼Æ»®
- Ç©ÊðÌõÔ¼×¼ÆÚÉú²ú
- ÅäËÍ×°ÖÃÖ¸µ¼²Ù×÷
- Ãâ·ÑÅàѵºã¾ÃÊÛºó
135-2505-6999
²úÆ·ÖÖ±ð£ºË«ÁºÆðÖØ»ú
Ó¦ÓùæÄ££º
ÏúÊÛЧÀÍ»ú¹¹
480Óà¼ÒÖÖÖÖ¼Ó¹¤×°±¸
1600Óą̀¸÷¼¶ÉùÓþ³Æºô
120ÓàÏîÌìÏÂ×ÉѯЧÀ͵绰
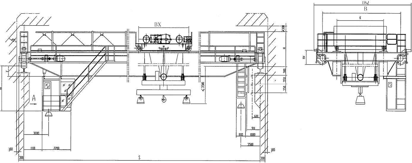
135-2505-6999¡¡¡¡±¾ÆðÖØ»ú´øÓпÉÐýת¹ÒÁº£¬£¬£¬£¬£¬£¬£¬£¬ÊÊÓÃÓÚ¸Ö³§¡¢´¬³§¡¢¿Ú°¶¡¢¶Ñ³¡ºÍ²Ö´¢µÈÊÒÄÚ»ò¶ÌìµÄÀο¿¿ç¼ä£¬£¬£¬£¬£¬£¬£¬£¬×°Ð¶¼°°áÔ˸ְ塢Ð͸֡¢Å̾íµÈÎïÁÏ¡£¡£¡£¡£¡£ÌØÊâÊÊÓÃÓÚµõÔ˲î±ð¹æ¸ñÇÒÐèˮƽÐýתµÄ³¡ºÏ¡£¡£¡£¡£¡£¹ÒÁºÎªÊ®×ּܽṹ£¬£¬£¬£¬£¬£¬£¬£¬¿É¿¿¼°Çå¾²ÐԺ㬣¬£¬£¬£¬£¬£¬£¬¾ßÓÐÒ»¶¨µÄ·ÀÒ¡»Î¹¦Ð§¡£¡£¡£¡£¡£¹ÒÁºÏ¿ÉÒÔЯ´øµç´ÅÎüÅÌ¡¢¼ÐǯµÈרÓõõ¾ß¡£¡£¡£¡£¡£

¡¡¡¡×¢£º
¡¡¡¡1¡¢½øÈë˾»úÊÒµÄ×ß̨·½·¨Îª£º¶ËÈë¡¢²àÈë¡¢¶¥È룻£»£»£»£»
¡¡¡¡2¡¢ÆðÖØÁ¿°üÀ¨¹ÒÁº¼°×¨Óõõ¾ß°×ÖØ£»£»£»£»£»
¡¡¡¡3¡¢¹ÒÁº´óÐýת½Ç¶ÈΪ¡À180¡ã£»£»£»£»£»
¡¡¡¡4¡¢Í¼Ê¾*ÏÞλÖóߴçS1¡¢S2Ϊ¹ÒÁºÐýת90¡ãºó£¬£¬£¬£¬£¬£¬£¬£¬¹ÒÁºÖÐÐÄÏß¾à¹ìµÀÖÐÐÄÏßÊý¾Ý£»£»£»£»£»
¡¡¡¡5¡¢ÒÔÏÂËùÓÐÊý¾ÝΪÊÒÄÚʹÓÃʱ£»£»£»£»£»
¡¡¡¡6¡¢²ÎÊý±íÖÐÆðÖØ»ú×ܹ¦ÂÊΪÐгµ±¾Ì幦ÂÊ£¬£¬£¬£¬£¬£¬£¬£¬²»º¬×¨Óõõ¾ß¹¦ÂÊ
¡¡¡¡Low level slewing overhead crane with carrier-beam
¡¡¡¡The crane has slewing carrier-beam£»£»£»£»£»is applicable to the fixed span at indoorsor outdoors of steel mill£¬£¬£¬£¬£¬£¬£¬£¬Shipyard£¬£¬£¬£¬£¬£¬£¬£¬port£¬£¬£¬£¬£¬£¬£¬£¬yard and storage£¬£¬£¬£¬£¬£¬£¬£¬etc£®It is used for loading£¬£¬£¬£¬£¬£¬£¬£¬unloading and carrying steel plate£¬£¬£¬£¬£¬£¬£¬£¬profile steel£¬£¬£¬£¬£¬£¬£¬£¬and spool£¬£¬£¬£¬£¬£¬£¬£¬etc£®It is especially applicable to lift material of different specifications and which needs Horizontal rotation£®The carrier-beam is cross structure£¬£¬£¬£¬£¬£¬£¬£¬which is reliable and has good safety features£¬£¬£¬£¬£¬£¬£¬£¬and Has a certain function of preventing swinging£®The lower part of the carrier-beam can bring special lifting appliances£¬£¬£¬£¬£¬£¬£¬£¬such as magnetic chuck and tongs£¬£¬£¬£¬£¬£¬£¬£¬etc
¡¡¡¡Notes£º
¡¡¡¡1£®The modes of entering cab£ºfrom the end£»£»£»£»£»from the side£»£»£»£»£»from the top£»£»£»£»£»
¡¡¡¡2£®The lifting weigh tincludes deadweight of the carrier-beam and speciallifting appliances£»£»£»£»£»
¡¡¡¡3£®The max.rotating angle ofcarrier-beam is¡À180¡£¡£¡£¡£¡££»£»£»£»£»
¡¡¡¡4£®The sizes of the limiting position Sland S2 in The figureare the data between the center line of carrier-Beam and the center line of the rail after the carrier-beam rotates 90¡£¡£¡£¡£¡£ £»£»£»£»£»
¡¡¡¡5£®All below-mentioned data is for being used indoors£»£»£»£»£»
¡¡¡¡6£®The total power of the crane in the parameter list is the power of The travelling crane£¬£¬£¬£¬£¬£¬£¬£¬but excludes the Power of speciallifting appliances.


ʵÁ¦°ü¹Ü¡¡Äê²úÏú97000Óą̀
ÏÖÓÐÔ±¹¤3100ÈË£¬£¬£¬£¬£¬£¬£¬£¬Õ¼µØ68ÍòÓàÆ½·½Ã×£¬£¬£¬£¬£¬£¬£¬£¬ÓµÓÐ×ʲú12.8ÒÚÔª£¬£¬£¬£¬£¬£¬£¬£¬480Óà¼ÒÏúÊÛЧÀÍ»ú¹¹·øÉ亣ÄÚÍ⣬£¬£¬£¬£¬£¬£¬£¬ÖÖÖÖ¼Ó¹¤×°±¸1600Óą̀£¨Ì×£©Æ·Åưü¹Ü¡¡ÖØ»úлḱÀíʳ¤µ¥Î»
ÒÑ»ñ²¿¼¶¡¢Ê¡¼¶120ÓàÏîÉùÓþ³Æºô£¬£¬£¬£¬£¬£¬£¬£¬²úÆ·ÍÑÏúÌìÏÂ30¶à¸öÊ¡ÊÐ×ÔÖÎÇøÓë¾ü¹¤¡¢ºËµç¡¢º½ÌìµÈ¹úÆó¼¯ÍލÉèÁËÓÅÒìµÄÓªÒµ¹ØÏµÖÊÁ¿°ü¹Ü¡¡°ÙµÀÖʼ칤ÐòרÈËרְ
ÍêÉÆµÄÖÊÁ¿ÏµÍ³¡¢ÑÏ¿áµÄÖÎÀíÖÆ¶È£¬£¬£¬£¬£¬£¬£¬£¬ÒÑͨ¹ýGB/T19001/ISO9001ÖÊÁ¿ÖÎÀíϵͳ£¬£¬£¬£¬£¬£¬£¬£¬GB/T24001/ISO14001ÇéÐÎÖÎÀíϵͳµÈЧÀͰü¹Ü¡¡ÊÛºó24Сʱ¿ìËÙÏìÓ¦
ƾ֤ÌõÔ¼ÒªÇóΪÊÛ³öµÄ×°±¸¾ÙÐÐ×°Öᢵ÷ÊÔºÍÅàѵÂò·½ÊÖÒÕÖ°Ô±£¬£¬£¬£¬£¬£¬£¬£¬7*24Сʱרְ¿Í·þ¿ìËÙÏìӦЧÀÍ£¬£¬£¬£¬£¬£¬£¬£¬¿ìËÙ½â¾öʹÓÃÄÑÌâÃâ·Ñ¶¨ÖƲúÆ·¼Æ»®¡¡Ô¤Ô¼ÊµµØ¿¼²ì
רעΪ¿Í»§ÌṩÆð֨װ±¸ÕûÌå½â¾ö¼Æ»®
רעΪ¿Í»§ÌṩÆð֨װ±¸ÕûÌå½â¾ö¼Æ»®
01
ÏàʶÐèÇó02
È·¶¨ÐèÇó03
Ç©ÊðÌõÔ¼04
×¼ÆÚÉú²ú05
ÅäËÍ×°ÖÃ01
ÊÛºóЧÀÍ
ÌìÏÂͳһЧÀÍÈÈÏߣº
135-2505-6999
ɨһɨ
¹Ø×¢ÎÒÃÇ
ÌìÏÂÃâ·ÑЧÀÍÈÈÏß
135-2505-6999