Ãâ·Ñ¶¨ÖƲúÆ·¼Æ»®¡¡Ô¤Ô¼ÊµµØ¿¼²ì
- ÏàʶÐèÇóÈ·¶¨¼Æ»®
- Ç©ÊðÌõÔ¼×¼ÆÚÉú²ú
- ÅäËÍ×°ÖÃÖ¸µ¼²Ù×÷
- Ãâ·ÑÅàѵºã¾ÃÊÛºó
135-2505-6999
²úÆ·ÖÖ±ð£ºË«ÁºÆðÖØ»ú
Ó¦ÓùæÄ££º
ÏúÊÛЧÀÍ»ú¹¹
480Óà¼ÒÖÖÖÖ¼Ó¹¤×°±¸
1600Óą̀¸÷¼¶ÉùÓþ³Æºô
120ÓàÏîÌìÏÂ×ÉѯЧÀ͵绰
135-2505-6999
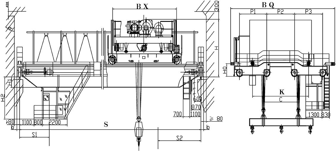
¡¡¡¡±¾ÆðÖØ»ú´øÓпÉÐýת¹ÒÁº£¬£¬£¬£¬£¬£¬£¬ÊÊÓÃÓÚ¸Ö³§¡¢¶Ñ³¡ºÍ²Ö´¢µÈÊÒÄÚ»ò¶ÌìµÄÀο¿¿ç¼ä£¬£¬£¬£¬£¬£¬£¬×°Ð¶¼°°áÔ˸ְ塢Ð͸֡¢Å̾íµÈÎïÁÏ¡£¡£¡£¡£¡£¡£ÌØÊâÊÊÓÃÓÚµõÔ˲î±ð¹æ¸ñÇÒÐèˮƽÐýתµÄ³¡ºÏ¡£¡£¡£¡£¡£¡£¹ÒÁºÏ¿ÉÒÔЯ´øµç´ÅÎüÅÌ¡¢¼ÐǯµÈרÓõõ¾ß¡£¡£¡£¡£¡£¡£
¡¡¡¡The crane has slewing carrier-beam£»£»£»£»£»£»£»is applicable to the fixed span at indoors or outdoors of stee1mil1£®yard and storage£¬£¬£¬£¬£¬£¬£¬etc£®It is used for loading£¬£¬£¬£¬£¬£¬£¬unloading and carrying stee1 plate£¬£¬£¬£¬£¬£¬£¬profile steel£¬£¬£¬£¬£¬£¬£¬and spool£¬£¬£¬£¬£¬£¬£¬etc£®It is especially applicable to lift materia1 of different peifications and which needs horizontal rotation£®The lower part of the carriler¡ªbeam can bring special lifting appliances,such as magnetic chuck and tongs£¬£¬£¬£¬£¬£¬£¬etc£®
¡¡¡¡×¢£º
¡¡¡¡1¡¢½øÈë˾»úÊÒµÄ×ß̨·½·¨·ÖΪ£º¶ËÈë¡¢²àÈë¡¢¶¥Èë¡£¡£¡£¡£¡£¡£
¡¡¡¡2¡¢ÆðÖØÁ¿°üÀ¨¹ÒÁº¼°×¨Óõõ¾ß×ÔÖØ£»£»£»£»£»£»£»
¡¡¡¡3¡¢¹ÒÁº´óÐýת½Ç¶È¿É°´Óû§ÒªÇ󣻣»£»£»£»£»£»
¡¡¡¡4¡¢ÒÔÉÏËùÓÐÊý¾ÝΪÊÒÄÚʹÓÃʱ£»£»£»£»£»£»£»
¡¡¡¡5¡¢²ÎÊý±íÖÐÆðÖØ»ú×ܹ¦ÂÊΪÐгµ±¾Ì幦ÂÊ£¬£¬£¬£¬£¬£¬£¬²»º¬×¨Óõõ¾ß¹¦ÂÊ¡£¡£¡£¡£¡£¡£
¡¡¡¡Note£º
¡¡¡¡1£®The modes entering cab£ºform the end£ºform the side£»£»£»£»£»£»£»form the top¡£¡£¡£¡£¡£¡£
¡¡¡¡2£®The lifting weight includes deadweight of the carrier¡ªbeam and special lifting applicnces£»£»£»£»£»£»£»
¡¡¡¡3£®The max.rotating angle of the carrier¡ªbeam can be made as the user asks£»£»£»£»£»£»£»
¡¡¡¡4£®All above-mentioned data is for being used indoors£»£»£»£»£»£»£»
¡¡¡¡5. The total power of the crane in the parameter list is the power of the travelling crane£¬£¬£¬£¬£¬£¬£¬but excludes
¡¡¡¡the power ofspecial lifting appliances.



ʵÁ¦°ü¹Ü¡¡Äê²úÏú97000Óą̀
ÏÖÓÐÔ±¹¤3100ÈË£¬£¬£¬£¬£¬£¬£¬Õ¼µØ68ÍòÓàÆ½·½Ã×£¬£¬£¬£¬£¬£¬£¬ÓµÓÐ×ʲú12.8ÒÚÔª£¬£¬£¬£¬£¬£¬£¬480Óà¼ÒÏúÊÛЧÀÍ»ú¹¹·øÉ亣ÄÚÍ⣬£¬£¬£¬£¬£¬£¬ÖÖÖÖ¼Ó¹¤×°±¸1600Óą̀£¨Ì×£©Æ·Åưü¹Ü¡¡ÖØ»úлḱÀíʳ¤µ¥Î»
ÒÑ»ñ²¿¼¶¡¢Ê¡¼¶120ÓàÏîÉùÓþ³Æºô£¬£¬£¬£¬£¬£¬£¬²úÆ·ÍÑÏúÌìÏÂ30¶à¸öÊ¡ÊÐ×ÔÖÎÇøÓë¾ü¹¤¡¢ºËµç¡¢º½ÌìµÈ¹úÆó¼¯ÍލÉèÁËÓÅÒìµÄÓªÒµ¹ØÏµÖÊÁ¿°ü¹Ü¡¡°ÙµÀÖʼ칤ÐòרÈËרְ
ÍêÉÆµÄÖÊÁ¿ÏµÍ³¡¢ÑÏ¿áµÄÖÎÀíÖÆ¶È£¬£¬£¬£¬£¬£¬£¬ÒÑͨ¹ýGB/T19001/ISO9001ÖÊÁ¿ÖÎÀíϵͳ£¬£¬£¬£¬£¬£¬£¬GB/T24001/ISO14001ÇéÐÎÖÎÀíϵͳµÈЧÀͰü¹Ü¡¡ÊÛºó24Сʱ¿ìËÙÏìÓ¦
ƾ֤ÌõÔ¼ÒªÇóΪÊÛ³öµÄ×°±¸¾ÙÐÐ×°Öᢵ÷ÊÔºÍÅàѵÂò·½ÊÖÒÕÖ°Ô±£¬£¬£¬£¬£¬£¬£¬7*24Сʱרְ¿Í·þ¿ìËÙÏìӦЧÀÍ£¬£¬£¬£¬£¬£¬£¬¿ìËÙ½â¾öʹÓÃÄÑÌâÃâ·Ñ¶¨ÖƲúÆ·¼Æ»®¡¡Ô¤Ô¼ÊµµØ¿¼²ì
רעΪ¿Í»§ÌṩÆð֨װ±¸ÕûÌå½â¾ö¼Æ»®
רעΪ¿Í»§ÌṩÆð֨װ±¸ÕûÌå½â¾ö¼Æ»®
01
ÏàʶÐèÇó02
È·¶¨ÐèÇó03
Ç©ÊðÌõÔ¼04
×¼ÆÚÉú²ú05
ÅäËÍ×°ÖÃ01
ÊÛºóЧÀÍ
ÌìÏÂͳһЧÀÍÈÈÏߣº
135-2505-6999
ɨһɨ
¹Ø×¢ÎÒÃÇ
ÌìÏÂÃâ·ÑЧÀÍÈÈÏß
135-2505-6999